
Sie haben Sie die Wahl aus verschiedenen Wohnungstypen. Bitte beachten Sie, dass, die Wohnungen im depot 3 anders geschnitten sind als die Wohnungen in depot 1 und 2.
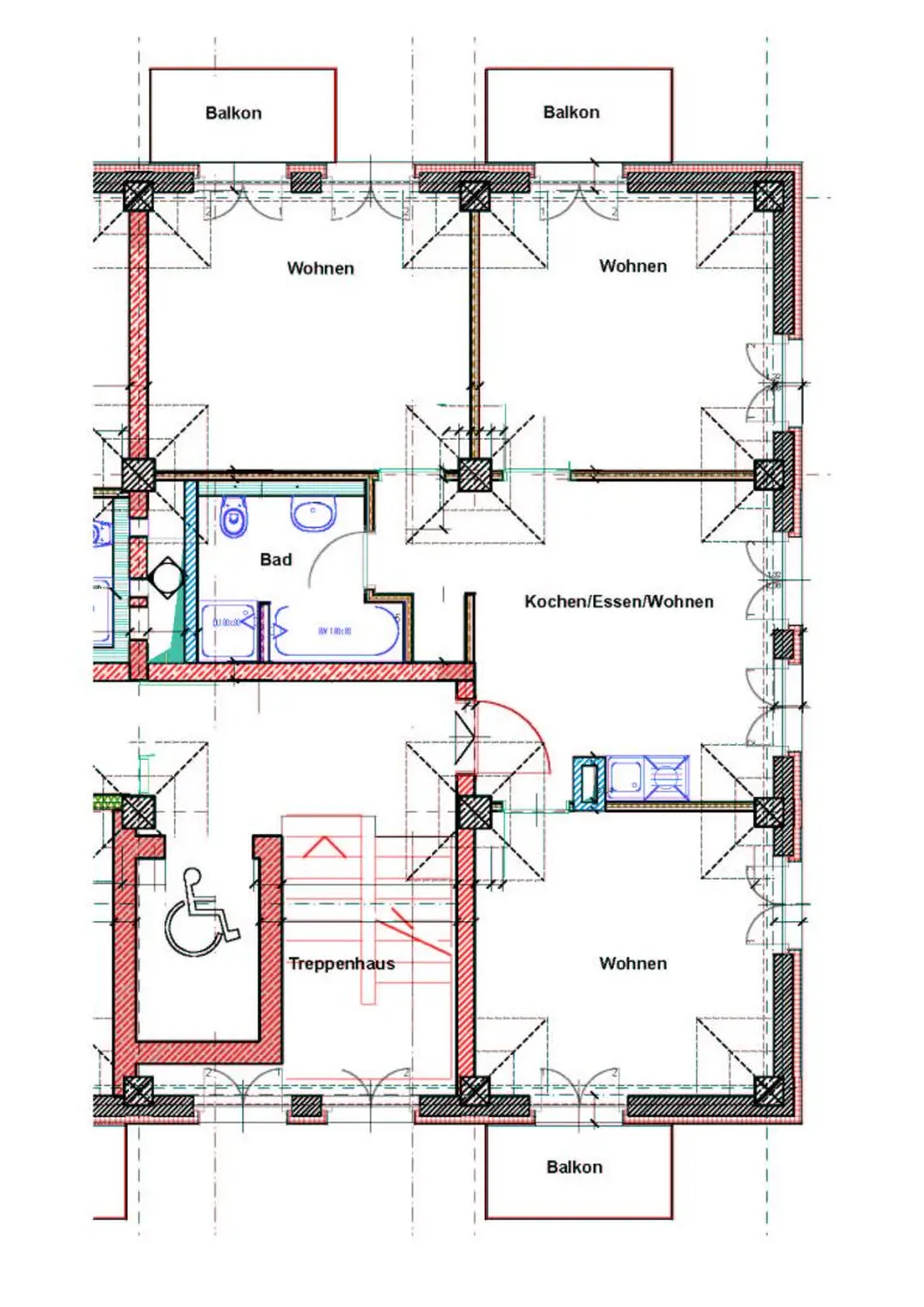
Barrierefreie Wohnungen im Erdgeschoss
Früher war WG eine Glaubensfrage, heute ist es eine ganz normale Wohnvariante. Im Depot gilt: Wer’s will, kann's haben. – Wer Nähe mag und die Funktionsräume mit anderen teilt, bekommt in der WG mehr Raum für weniger Geld.
Unsere Mehrzimmerwohnungen sind bestens für Wohngemeinschaften geeignet: alle Zimmer sind von dem zentralen Flur aus erreichbar (keine Durchgangszimmer); die geräumige Wohnküche bietet Platz für viele Köche.
